logo-x.png

PLANTA INDUSTRIAL 

 

PROJETO DE ESTRUTURAS METÁLICAS DE PLANTA PARA BENEFICIAMENTO DE MINÉRIO.

 

NESSE CONTRATO FOI REALIZADA OS PROJETOS BÁSICOS E EXECUTIVOS DA PLANTA INTEIRA. LUCAS FONSECA CAD/CAE FOI RESPONSÁVEL PELO DIMENSIONAMENTO, MODELAGEM E DESENHOS PARA TODA A PLANTA . 

 

TAMBÉM FOI REALIZADA A COMPATIBILIZAÇÃO ENTRE AS DISCIPLINAS.

TORRE PARA ELEVADOR DE CANECOS

 

3 ELEVADORE DE CANECOS PARA FAZENDA DE GRÃOS

 

ÁREA 43.5 m²

 

ALTURA 49.5 m

 

PESO 33 t

 

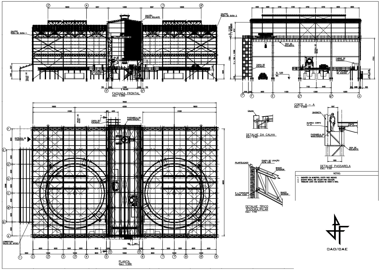
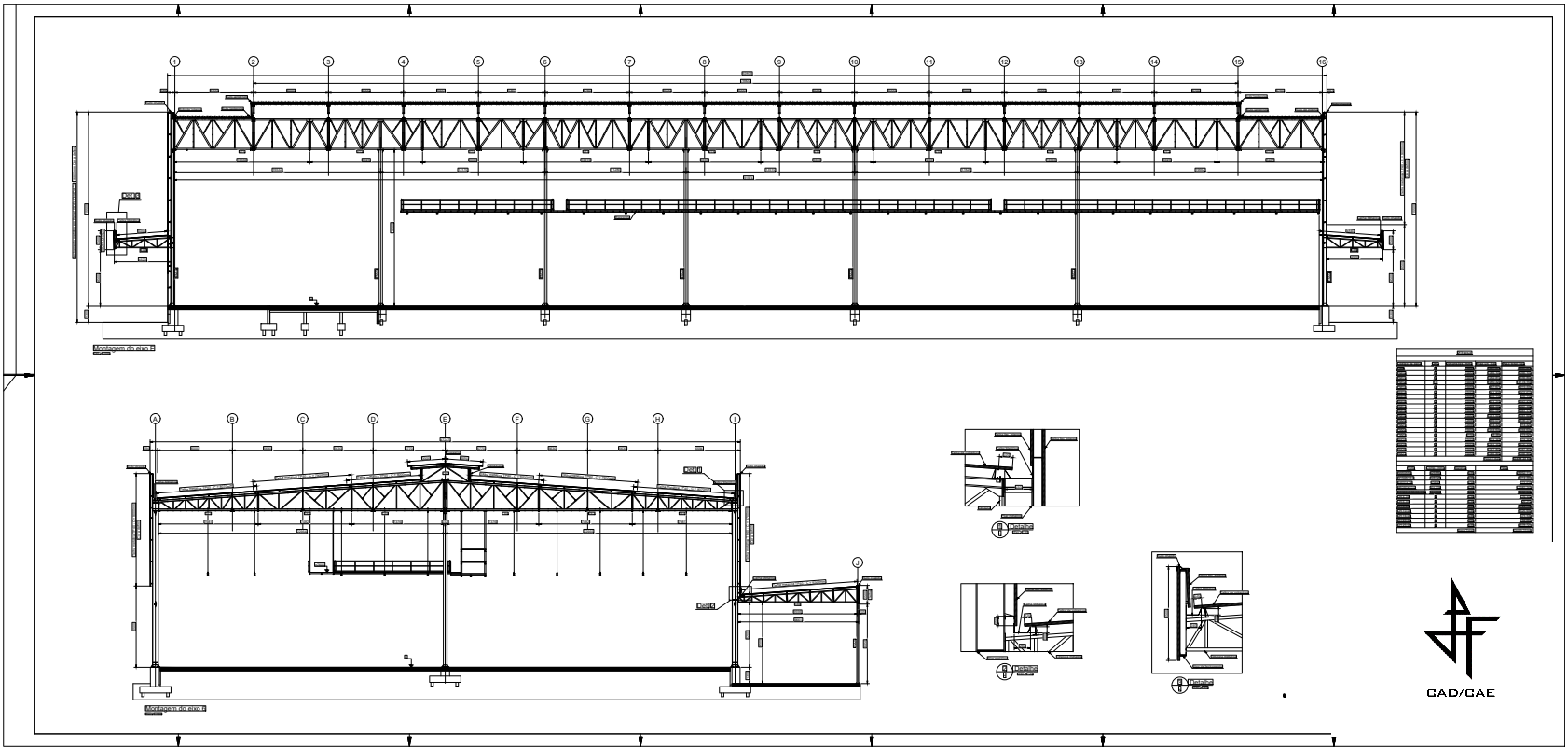
GALPÃO INDUSTRIAL

 

PONTE ROLANTE

 

3 NAVES

 

VÃO LIVRE 46 m

 

COMPRIMENTO TOTATAL 82 m

 

ÁREA 3.772 m²

 

ALTURA 25 m

 

PESO 451,1 t

GALPÃO INDUSTRIAL

 

3 PONTES ROLANTES

 

3 NAVES

 

VÃO LIVRE 30 m

 

COMPRIMENTO TOTAL 100 m

 

ÁREA 7.000 m²

 

ALTURA 18 m

 

PESO 420 t

 

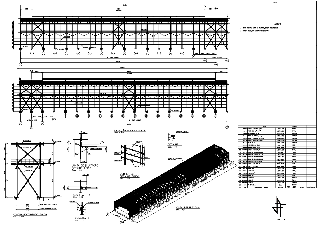
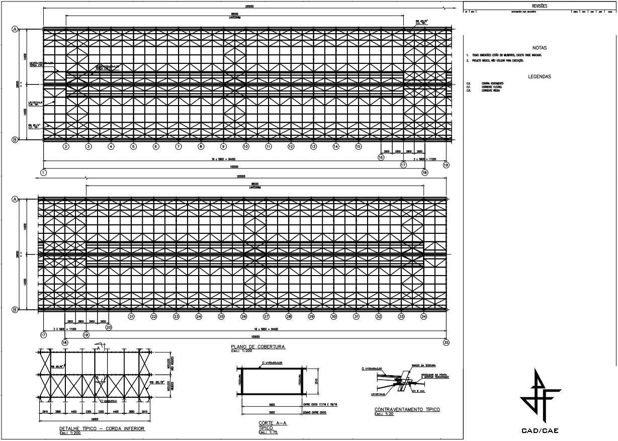
GALPÃO LINHA FERREA

 

2 PONTES ROLANTES 

 

VÃO LIVRE 29 m

 

COMPRIMENTO TOTAL 200 m

 

ÁREA 5.800 m²

 

ALTURA 14 m

 

PESO 775 t

 

GALPÃO LOGÍSTICO

 

VÃO LIVRE 47 m

 

COMPRIMENTO TOTAL 95 m

 

ÁREA 4.750 m²

 

ALTURA 16 m

 

PESO 285 t

 

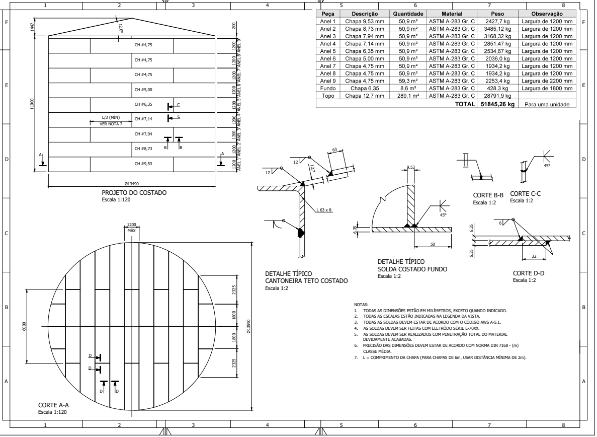
CASTELO D'ÁGUA

 

AUTO PORTANTE

 

1.500 MILHÕES DE LITROS 

 

DIÂMETRO 13,5 m

 

ALTURA 11 m

 

PESO 6t

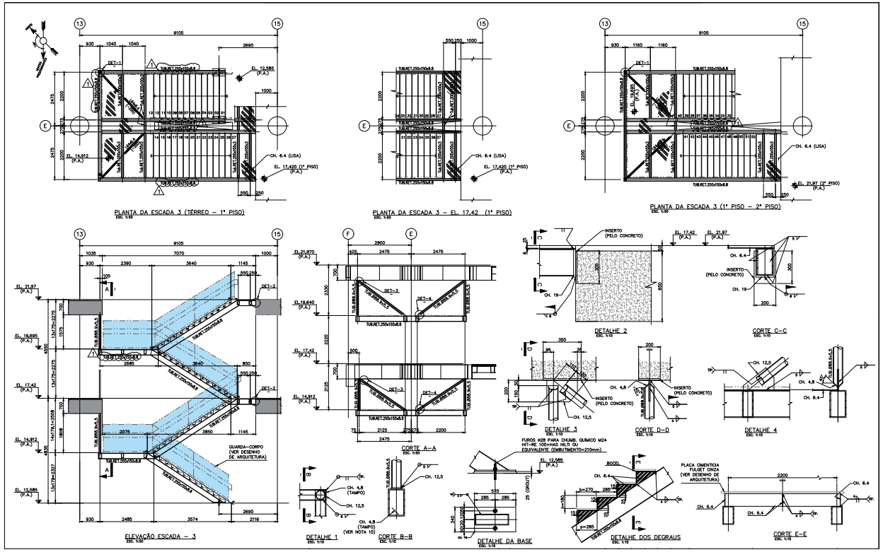
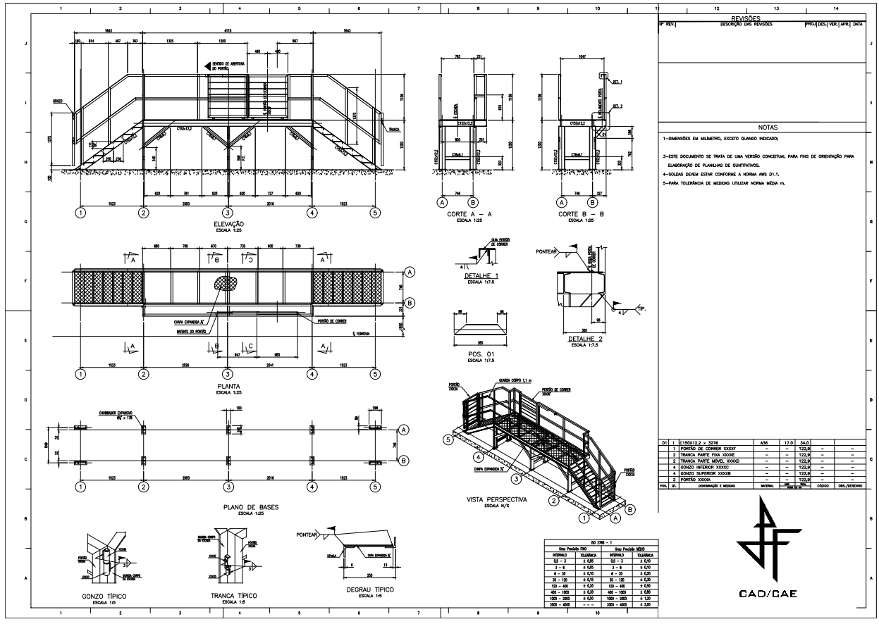
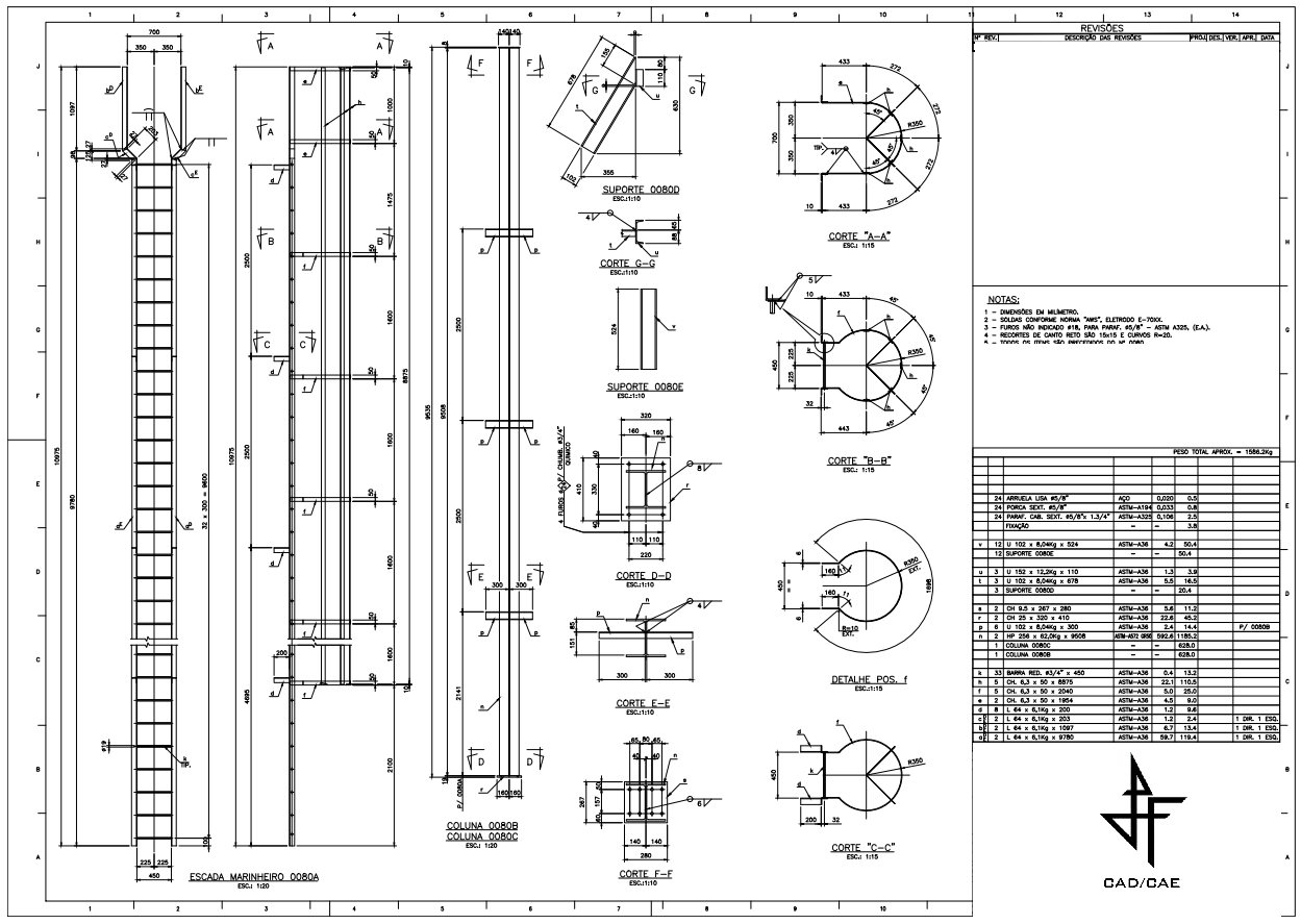
ACESSO A ÁREAS TÉCNICAS

 

PLATAFORMAS

 

ESCADAS

 

ESCADAS DE MARINHEIRO

 

GUARDA CORPOS

 

LINHAS DE VIDA

 

TRAVA QUEDAS

 

NR-12

 

PRINCIPAIS CLIENTES